钢货架安装和使用方法指南 (钢铁货架怎么安装)
立体库中常用的几种货架
- 万能角钢货架
- 重型模具架
- 中型横梁式货架
- 不锈钢货架
- 贯通式货架
- 悬臂货架
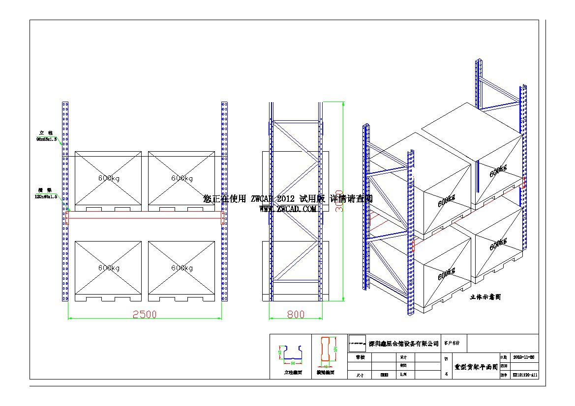
- 重型托盘货架
仓库货架的作用
- 提高库容利用率
- 保护货物
- 便于存取货物
- 保证存储货物的质量
- 实现仓库机械化和自动化管理
仓库货架定做流程
- 需求方提出货架系统要求
- 供应商了解情况
- 供应商作方案设计选型
- 方案探讨和优化
- 方案合理性、优化程度评定
- 方案报价
- 供应商选定
- 合同签定
- 货架系统详细技术设计
- 货架系统制造
- 货架个组成部件出厂
- 货架系统安装
- 货架验收
管理要点
- 规范进出货流程制度
- 统一钢材品名、规格
- 整齐定点摆放
- 做有效的标识及分区位
- 严格验收进货
- 整理现有的帐物
- 实施盘点
- 先进先出
- 定期防锈
- 安全管理
钢货架底下铺垫
- 木托板
- 塑料垫板
- 钢垫板
仓库货架表面处理方法
- 喷粉
- 电镀
- 热镀锌
转载请注明出处:https://www.twgcw.com/fggq/66155.html
