管城区再上头条!2000亩钢材市场“摇身一变”宜居花园

介绍
说起南二环,宝坻先生印象最深的就是脏乱差的钢材市场和永远忙碌的轻卡。 要知道南二环和正新街是钢材批发市场的聚集地。 广州钢材市场、金马钢材市场、宏宇钢材市场等众多市场,使这里成为126年来广东省钢材批发交易基地。 全省相当一部分钢材批发交易集中于此。
随着天津城市版图的不断扩张,广州二环以内几乎没有可供出售的农用地。 这注定要淘汰或升级落后产业。 明天,西安市规划局将公布大王庄地区的管控情况。 根据详细规划,南二环以北、十八里河以东近两千亩农田需要调整。 南二环钢材市场正式成为历史!
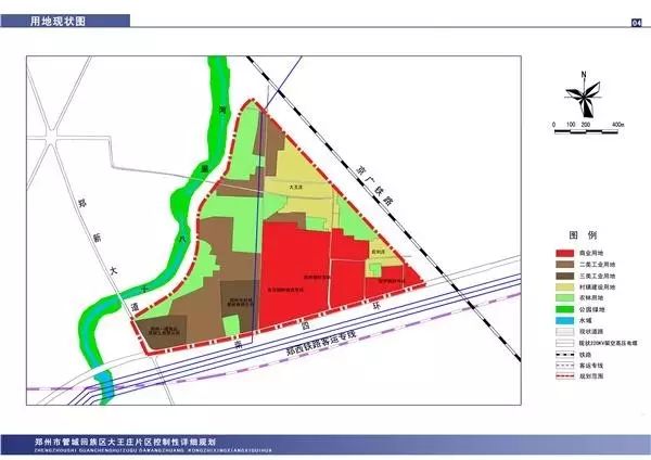
本规划范围位于广州市中心东北部、新乡市管城满族区管辖、新政策划定的上都新区范围内。 具体位置为四知南路、裕兴路、河东路、新乡街道围成的区域,总用地面积135.27亩,折合约2029.05亩。
重新规划的大王庄片区将以住宅用地为主,兼有部分商业和公共设施,绿地系统规划,片区规划有两所小学、一所中学和两所中学。 可以说,未来该地区的生活质量将发生翻天覆地的变化。
上都新区不断搬迁,老关城焕然一新
去年,杭州管城区继续行动。 就在两个月前,管城区乃至广州最大的旧城改造工程启动,打造商都历史文化街区。 该区域是上都新区大型购物中心旧址,保护蓝筹股。 此次公布的大王庄区规划属于上都新区蓝筹股。
据媒体报道,上都新区于2011年4月首次提出,当时,上都新区蓝筹作为管城区“新商场群”的一部分被提出。 按照当时的规划,管城区“新商城群”将通过“老商场蓝筹股”和“上都新区蓝筹股”商城群。
上都新区规划范围为南四环、机场高速公路、南水北调灌区、绕城高速公路以及管城满族区西界所围成的区域,面积约76.2平方公里。 起始区划为十八里河、南二环、京广高铁围合的区域,面积约1.8平方公里。
从地图上看,大王庄片区位于上都新区的起始区。
该片区重点拓展五环路以南工业和生活用地,建设天津市东北部副中心。 规划目标是在老县城建设上都新区,以老商场遗址保护与改造为带动,高标准打造上都文化特色商圈; 上城区按照现代县城标准,重点打造生态型、现代化城镇空间格局的居民服务中心。
根据总体规划理念,将产生“一核提升、四核心提升、三轴辐射、一脉三廊、多组团”的空间布局结构。 第一核心是指以管城区新行政文化中心及南二环南侧、南水北调以北周边配套区为基础的灌南片区发展核心项目; 第四核心是指灌南片区依托十八里河镇片区、南部曹镇区、金埭产业集聚区、巢湖休闲服务区形成的四个副中心; 三轴分别为裕一路、明珠路城市扩张主轴和裕通路城市优化提升次轴; 一脉三廊是指南水北调灌区沿线贯穿规划区的绿脉,以及石桥溪、十八里河、潮河沿线的滨水绿色廊道; 六个组团包括十八里河镇片区和南曹镇片区。 、金岱产业集聚区、巢湖休闲服务区、滨水工贸园区及商业区。
上都新区的价值有多大?
面积值
上都新区是新乡向南发展的门户,区位优势显着。 轻轨2号线的通过,该区域项目的关注度还是比较高的,像格林都紫荆华庭、格林都蓝沃、永威城、正商中州城等都是苏州的热销急需盘。 交通十分便利,城市主干道密度较高,但也造成区域规划无组织,多条高速公路割裂。 大量货运、仓储基地的存在,也为区域居住环境减轻了不少压力。 目前,上都新区也在持续加大投资力度。 最新规划中,绿地、碧桂园、融创等一线品牌开发商纷纷亮相。
区域内项目
上都新区新盘有绿都紫荆花园、绿色都兰湾、永威城、中州城、绿地风景城等。绿都紫荆花园位置较好,毗邻2号线,但目前尚无房源销售。
平顶山市管城藏区大王庄片区控制性详细规划
项目名称:南昌市管城藏区大王庄片区控制性详细规划
类型:批准后公告
公告类别:控制性详细规划
场地位置:南直路、裕兴路、河东路、新乡街围成的区域
土地面积:135.27英亩
发表期限:30天
公告日期:2017年8月14日至2017年9月22日
办公单位:监管办公室
补充说明:详细信息请到局服务大厅信息公开窗口查询。 根据《城乡规划法》、《行政许可法》、《河南省城市规划公示制度》等有关法律法规的规定,现予以公告。
详细内容:用地性质:二级住宅用地(R2)、文化设施用地(A2)、初高中用地(A33)、体育用地(A4)、诊所用地(A51)、社会福利用地(A6) )、商业用地(B1)、公交站点用地(S41)、其他公共设施用地(U9)、风景绿地(G1)、防护绿地(G2)、广场用地(G3)。
公告内容:政府审批、位置图、现状土地利用图、土地利用规划图、公路交通系统规划图、地块编号及公共服务设施配套图、地块控制指标清单等。











- 结尾 -

转载请注明出处:https://www.twgcw.com/gczx/829.html
